Courtesy of Royal LePage Next Level

680 7th Avenue E #225, Condo for sale Melville , Saskatchewan , S0A 2P0

 MLS® # SK033711

1 bedrooms

1 bathrooms

532 sqft

Sign up to View

Days on Market

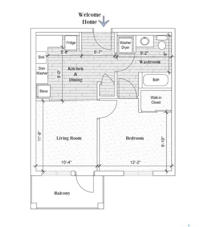
Welcome to effortless living at the charming Cumberland Villas in Melville. This inviting 532 sq. ft. one bedroom, on bathroom suite on the 2nd floor offers comfort, convenience, and thoughtful design. The eat-in kitchen flows seamlessly into a bright, spacious living area and features 4 appliances along with generous counter and cabinet space. The bedroom is well-sized with a large closet, and the 4-piece bathroom includes stackable laundry accessible from both the foyer and bedroom for added ease. Step ou...

Read More

Essential Information

  • MLS® #
    SK033711
  • Year Built
    2012
  • Property Type
    Residential
  • Property Subtype
    Apartment
  • Property Style
    Apartment Unit Multi-Level
  • MLS® #
    SK033711
  • Year Built
    2012
  • Property Type
    Residential
  • Property Subtype
    Apartment
  • Property Style
    Apartment Unit Multi-Level
  • MLS® #
    SK033711
  • Year Built
    2012
  • Property Type
    Residential
  • Property Subtype
    Apartment
  • Property Style
    Apartment Unit Multi-Level

Community Information

  • Postal Code
    S0A 2P0
  • Postal Code
    S0A 2P0
  • Postal Code
    S0A 2P0

Services & Amenities

  • Parking
    No Garage
    Parking Spaces
  • Parking
    No Garage, Parking Spaces
  • Parking
    No Garage
    Parking Spaces

Interior

  • Heating
    Electric
    Forced Air
  • Heating
    Electric, Forced Air
  • Heating
    Electric
    Forced Air

Exterior

  • Lot/Exterior Features
    Balcony
    Garden Area
    Lawn Back
    Lawn Front
    Trees/Shrubs
  • Roof
    Asphalt Shingles
  • Lot/Exterior Features
    Balcony, Garden Area, Lawn Back, Lawn Front, Trees/Shrubs
  • Roof
    Asphalt Shingles
  • Lot/Exterior Features
    Balcony
    Garden Area
    Lawn Back
    Lawn Front
    Trees/Shrubs
  • Roof
    Asphalt Shingles

Additional Details

  • Taxes
    2460
  • Ownership Title
    Condominium
  • Included Equipment
    Dishwasher Built In
    Dryer
    Fridge
    Stove
    Washer
    Window Treatment
  • Features
    Accessible by Wheel Chair
    Air Conditioner (Central)
    Elevator
  • Taxes
    2460
  • Ownership Title
    Condominium
  • Included Equipment
    Dishwasher Built In, Dryer, Fridge, Stove, Washer, Window Treatment
  • Features
    Accessible by Wheel Chair, Air Conditioner (Central), Elevator
  • Taxes
    2460
  • Ownership Title
    Condominium
  • Included Equipment
    Dishwasher Built In
    Dryer
    Fridge
    Stove
    Washer
    Window Treatment
  • Features
    Accessible by Wheel Chair
    Air Conditioner (Central)
    Elevator

$120,000

680 7th Avenue E #225

Schedule Tour
Contact Agent

$547/month
Est. Monthly Payment
$
$
%
Learn More