Courtesy of RE/MAX Crown Real Estate

1524 Montreal Street, Commercial for sale in General Hospital Regina , Saskatchewan , S4P 3K1

 MLS® # SK026629

9,310 sqft

Sign up to View

Days on Market

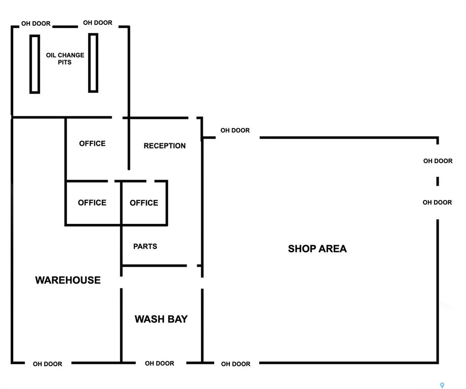
This successful automotive business has been in operation for over 40 years and the PROPERTY is now available for purchase as the owners are retiring. The property is ideally equipped for a wide range of services including general mechanic work, oil changes, parts storage, and vehicle washing. It is also suitable for light industrial usage as general warehouse. The facility features approximately 1,500 sq. ft. of office and reception space, with the remaining area dedicated to the shop—complete with in-floo...

Read More

Essential Information

  • MLS® #
    SK026629
  • Year Built
    1965
  • Property Type
    Commercial
  • Property Subtype
    Industrial
  • MLS® #
    SK026629
  • Year Built
    1965
  • Property Type
    Commercial
  • Property Subtype
    Industrial
  • MLS® #
    SK026629
  • Year Built
    1965
  • Property Type
    Commercial
  • Property Subtype
    Industrial

Community Information

  • Neighbourhood
    General Hospital
  • Postal Code
    S4P 3K1
  • Neighbourhood
    General Hospital
  • Postal Code
    S4P 3K1
  • Neighbourhood
    General Hospital
  • Postal Code
    S4P 3K1

Interior

  • Heating
    Other
  • Heating
    Other
  • Heating
    Other

Exterior

  • Construction
    Mixed
  • Construction
    Mixed
  • Construction
    Mixed

Additional Details

  • Taxes
    17680
  • Ownership Title
    Freehold
  • Taxes
    17680
  • Ownership Title
    Freehold
  • Taxes
    17680
  • Ownership Title
    Freehold

$999,999

1524 Montreal Street

Schedule Tour
Contact Agent

$4554/month
Est. Monthly Payment
$
$
%
Learn More