Courtesy of Century 21 Fusion

116 2nd Street, House for sale Hague , Saskatchewan , S0K 1X0

 MLS® # SK031500

2 bedrooms

2 bathrooms

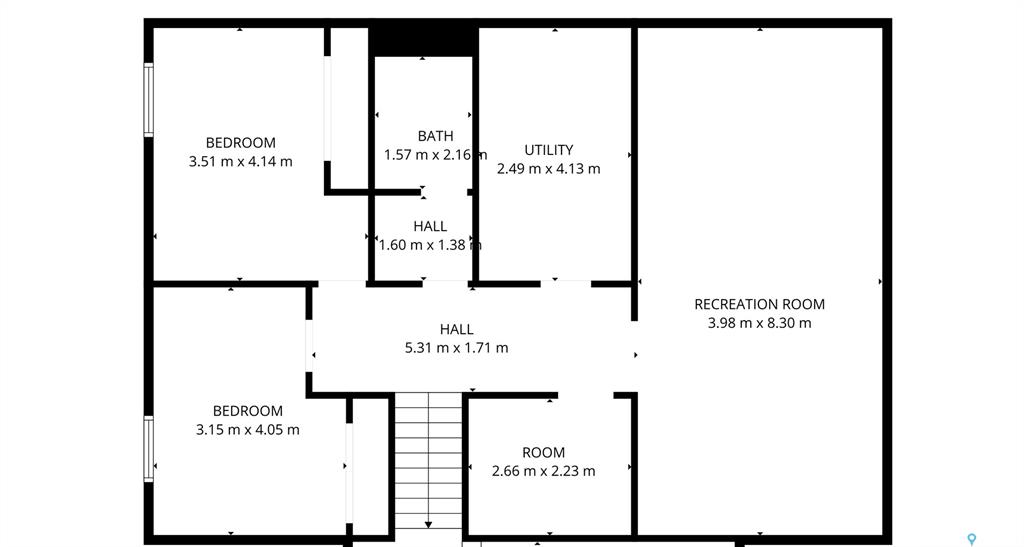
1,220 sqft

Sign up to View

Days on Market

Welcome to 116 2nd Street, Hague. This home captures the essence of small-town living, situated within short walking distance of the local school and downtown amenities, all while remaining just a short, convenient drive from the city of Saskatoon. Whether you are a growing family or a first-time buyer, this property offers an ideal blend of space, comfort, and affordability in a welcoming community. The main floor is designed for functional daily living, featuring a bright and spacious living room that ...

Read More

Essential Information

  • MLS® #
    SK031500
  • Year Built
    1978
  • Property Type
    Residential
  • Property Subtype
    Detached
  • Property Style
    Bungalow
  • MLS® #
    SK031500
  • Year Built
    1978
  • Property Type
    Residential
  • Property Subtype
    Detached
  • Property Style
    Bungalow
  • MLS® #
    SK031500
  • Year Built
    1978
  • Property Type
    Residential
  • Property Subtype
    Detached
  • Property Style
    Bungalow

Community Information

  • Postal Code
    S0K 1X0
  • Postal Code
    S0K 1X0
  • Postal Code
    S0K 1X0

Services & Amenities

  • Parking
    1 Car Attached
    Parking Pad
  • Parking
    1 Car Attached, Parking Pad
  • Parking
    1 Car Attached
    Parking Pad

Interior

  • Heating
    Forced Air
  • Water Heater
    Included
  • Water Heater Type
    Gas
  • Water Softener
    Not Included
  • Basement
    Full Basement
    Fully Finished
  • Basement Walls
    Preserved Wood
  • Heating
    Forced Air
  • Water Heater
    Included
  • Water Heater Type
    Gas
  • Water Softener
    Not Included
  • Basement
    Full Basement, Fully Finished
  • Basement Walls
    Preserved Wood
  • Heating
    Forced Air
  • Water Heater
    Included
  • Water Heater Type
    Gas
  • Water Softener
    Not Included
  • Basement
    Full Basement
    Fully Finished
  • Basement Walls
    Preserved Wood

Exterior

  • Lot/Exterior Features
    Fenced
    Lawn Back
    Lawn Front
    Patio
  • Roof
    Metal
  • Lot/Exterior Features
    Fenced, Lawn Back, Lawn Front, Patio
  • Roof
    Metal
  • Lot/Exterior Features
    Fenced
    Lawn Back
    Lawn Front
    Patio
  • Roof
    Metal

Additional Details

  • Taxes
    2418
  • Ownership Title
    Freehold
  • Included Equipment
    Central Vac Attached
    Central Vac Attachments
    Dishwasher Built In
    Dryer
    Freezer
    Fridge
    Garage Door Opnr/Control(S)
    Microwave
    Reverse Osmosis System
    Stove
    Washer
    Window Treatment
  • Features
    Floating Shelves
    Play Structures
  • Taxes
    2418
  • Ownership Title
    Freehold
  • Included Equipment
    Central Vac Attached, Central Vac Attachments, Dishwasher Built In, Dryer, Freezer, Fridge, Garage Door Opnr/Control(S), Microwave, Reverse Osmosis System, Stove, Washer, Window Treatment
  • Features
    Floating Shelves, Play Structures
  • Taxes
    2418
  • Ownership Title
    Freehold
  • Included Equipment
    Central Vac Attached
    Central Vac Attachments
    Dishwasher Built In
    Dryer
    Freezer
    Fridge
    Garage Door Opnr/Control(S)
    Microwave
    Reverse Osmosis System
    Stove
    Washer
    Window Treatment
  • Features
    Floating Shelves
    Play Structures

$389,900

116 2nd Street

Schedule Tour
Contact Agent

$1776/month
Est. Monthly Payment
$
$
%
Learn More